투수계수
"오늘의AI위키"의 AI를 통해 더욱 풍부하고 폭넓은 지식 경험을 누리세요.
1. 개요
투수계수는 토양이나 암석과 같은 다공성 매질 내에서 유체가 흐르는 정도를 나타내는 척도이다. 투수계수는 매질의 유효입경, 공극비, 비표면적과 유체의 단위중량, 점성계수 등의 영향을 받으며, Hazen의 경험식, Taylor의 식, Kozeny-Carman 식, Lambe-Whitman 식 등의 경험식을 통해 추정할 수 있다. 투수계수를 결정하는 방법에는 실내 시험(정수위 투수 시험, 변수위 투수 시험)과 현장 시험(양수 시험, 피압 지하수 우물 양수법, 시추공 이용 방법)이 있으며, 토층이 여러 층으로 구성된 경우 수평 또는 수직 토층 평균투수계수를 계산하여 전체 투수 특성을 파악한다. 투수계수는 m/day 또는 cm/hr 단위를 사용하며, 자연 상태에서 그 값은 여러 자릿수에 걸쳐 광범위하게 분포한다.
더 읽어볼만한 페이지
- 수리공학 - 우물
우물은 식수와 관개용으로 사용된 지하수 취수 구조물로, 다양한 재료와 기술로 건설되었으며 깊이와 용도에 따라 여러 종류로 나뉘지만, 오염과 고갈 문제, 사회·문화적 기능 약화라는 과제를 안고 있어 지속 가능한 이용을 위한 노력이 필요하다. - 수리공학 - 펌프
펌프는 공기나 액체를 흡입하여 토출하는 기계이며, 진공과 고압을 이용해 작동하고, 원심 펌프, 기어 펌프 등 다양한 종류가 있으며, 효율, 양정, 유량 등으로 성능을 평가하여 산업 전반에 사용된다. - 토질역학 - 산사태
산사태는 사면 안정성 훼손으로 발생하는 자연재해로, 자연적, 인위적 요인에 의해 발생하며, 다양한 유형으로 분류되고 인명 및 재산 피해를 야기하므로, 사전 예방과 위험 지역 관리가 중요하다. - 토질역학 - 점토
점토는 2~5µm 이하의 미세한 토양 입자로, 층상 규산염 광물을 주성분으로 하며, 다양한 분야에서 정의와 분류 기준이 다르고, 가소성과 소성능력, 흡착성, 이온 교환 능력을 활용하여 건축, 화장품, 의약품 등 다양한 용도로 사용되지만, 특정 점토는 토목 공사에 문제를 일으키기도 한다. - 수문학 - 밸브
밸브는 유체의 흐름을 제어하는 장치로, 다양한 크기와 작동 방식을 가지며, 산업 전반과 일상생활에서 널리 사용된다. - 수문학 - 산사태
산사태는 사면 안정성 훼손으로 발생하는 자연재해로, 자연적, 인위적 요인에 의해 발생하며, 다양한 유형으로 분류되고 인명 및 재산 피해를 야기하므로, 사전 예방과 위험 지역 관리가 중요하다.
| 투수계수 |
|---|
2. 투수계수에 영향을 주는 인자
투수계수는 매질과 통과하는 유체에 따라 결정된다. 매질의 특성으로는 유효입경, 공극비,[16] 비표면적 등이 있으며, 유체의 특성으로는 단위중량, 점성계수 등이 있다.
2. 1. 매질의 특성
유효입경 D10, 공극비 e,[16] 비표면적 S 등을 인자로 가지며, 유체의 경우 단위중량 γ, 점성계수 η 등을 인자로 가진다. 다음은 투수계수를 결정하는 몇 가지 식이다.'''Hazen의 경험식(1930)'''
0.1mm ≤ D10 ≤ 3mm, 균등계수 Cu ≤ 5 인 균등한 가는 모래의 경우 다음 경험식을 적용할 수 있다. c가 1.0에서 1.5 사이의 상수라고 할 때,
:k = c D10
'''Taylor의 식(1948)'''
C가 형상계수라고 할 때,[16]
:k = Ds2 γω|감마 오메가영어/η|에타영어 e3|e 세제곱영어/1+e|1+e영어 C
::Ds : 토립자 입경(cm)
'''Kozeny-Carman 식'''
Taylor의 식을 수정한 식이다. k0는 공극의 형상과 두 점 사이의 거리에 대한 실제 흐름 길이에 따른 계수이다.
:k = 1/k0 S2 γ|감마영어/η|에타영어 e3|e 세제곱영어/1+e|1+e영어
'''Lambe-Whitman 식'''
:e13|e 1의 세제곱영어/1+e1|1+e 1영어 k2 = e23|e 2의 세제곱영어/1+e2|1+e 2영어 k1
2. 2. 유체의 특성
투수계수는 매질과 통과 유체에 따라 결정된다. 매질의 경우 유효입경 D10, 공극비 e[1], 비표면적 S 등을 인자로 가지고, 유체의 경우 단위중량 γ, 점성계수 η[1] 등을 인자로 가진다.'''Hazen의 경험식(1930)'''
0.1mm에서 3mm 사이이고, 균등계수 인 균등한 가는 모래의 경우 다음 경험식을 적용할 수 있다. c가 1.0에서 1.5 사이의 상수라고 할 때,
:
'''Taylor의 식(1948)'''
C가 형상계수라고 할 때,[16]
:
::Ds : 토립자 입경(cm)
'''Kozeny-Carman 식'''
Taylor의 식을 수정한 식이다. k0는 공극의 형상과 두 점 사이의 거리에 대한 실제 흐름 길이에 따른 계수이다.
:
'''Lambe-Whitman 식'''
:
3. 투수계수 결정 방법
투수계수를 결정하는 방법에는 크게 실내 시험과 현장 시험이 있다. 실내 시험은 실험실에서 흙 시료를 채취하여 투수계수를 측정하는 방법이며, 정수위 투수시험과 변수위 투수시험이 있다. 현장 시험은 현장에서 직접 투수계수를 측정하는 방법으로, 양수시험, 피압 지하수 우물 양수법, 시추공을 이용하는 방법(개단시험, 패커시험) 등이 있다.
투수계수를 결정하는 방법에는 경험적 접근 방식과 실험적 접근 방식이 있다.[2]
- 경험적 접근 방식: 공극 크기, 입도 분포, 토양 조직과 같은 토양 특성을 이용하여 투수계수를 추정한다.
- 실험적 접근 방식: 다르시의 법칙을 사용하여 수리 실험을 통해 투수계수를 측정한다.
실내 시험과 현장 시험은 실험적 접근 방식에 속하며, 다음과 같이 더 세분화할 수 있다.
- 실내 시험: 수리 실험을 받는 토양 샘플을 사용한다.
- 현장 시험:
- 소규모 현장 시험: 토양 내 공동의 수위 관측을 사용한다.
- 침투 시험: 지하수위 ''위''의 공동에서 진행한다.
- 슬러그 테스트: 지하수위 ''아래''의 공동에서 진행한다.
- 대규모 현장 시험: 양수 시험과 같이 우물의 대규모 현장 테스트 또는 기존 수평 배수 시스템의 작동 관측을 사용한다.
이 외에도, 토양수리전달함수(PTF)와 같이 주로 토양학에서 사용되지만 수문지질학에서도 사용되는 경험적 추정 방법이 있다.[3]
3. 1. 실내 시험
실내 시험을 통해 투수계수를 결정하는 방법에는 정수위 투수 시험과 변수위 투수 시험이 있다. 정수위 투수 시험은 투수성이 비교적 큰 조립토에 적합하고, 변수위 투수 시험은 투수성이 비교적 작은 세립토에 적합하며, 이 두 시험은 모두 다르시의 법칙을 기반으로 한다.[1]3. 1. 1. 정수위 투수 시험

투수성이 비교적 큰 조립토에 적당하다. 흙 시료에 유입되는 수조와 유출되어 나오는 수조의 수위를 일정하게 하여 물을 시료에 통과시킴으로써 다르시의 법칙에 의해 투수계수를 구할 수 있다. 시험기구는 정압수두 투수계라고 부른다.[4]
정수위 투수 시험은 일반적으로 입상토에서 사용된다. 이 절차는 일정 수두 조건에서 물이 흙 시료를 통과하도록 하면서, 흙 시료를 통과하는 물의 부피를 일정 시간 동안 측정할 수 있도록 한다.
길이 L과 단면적 A의 시료에 대해, 시간 Δt 동안 측정된 물의 부피 ΔV와 수두 h를 알면, 다르시의 법칙을 간단히 재배열하여 수리 전도도 (K)를 구할 수 있다.
:
(증명)
다르시의 법칙은 체적 유량이 시료 양쪽의 압력 구배 (ΔP), 투수성 (k) 및 동점성 계수 (μ)에 따라 달라진다고 명시한다.[4]
:
정수위 실험에서 수두(두 높이의 차이)는 과도한 물의 질량 (ρAh)을 정의하며, 여기서 ρ는 물의 밀도이다. 이 질량은 물이 있는 쪽으로 무게를 가하여 ΔP = ρgh의 압력 차이를 생성하며, 여기서 g는 중력 가속도이다. 이것을 위에 직접 대입하면 다음과 같다.
:
수리 전도도가 수리 투수성과 다음과 같이 관련되어 정의된다면,
:
이것은 결과를 제공한다.
(참고: Q = kiAt, k = Q / iAt = QL / hAt, Q: 침투수량, A: 시료 단면적, t: 투수 시간, L: 시료 길이)
3. 1. 2. 변수위 투수 시험
투수성이 비교적 작은 세립토에 적당하다. 정수위 시험과는 다르게 유입수가 스탠드파이프를 통해 흙 시료를 빠져나가기 때문에 수위가 변한다. 파이프 단면적을 a, 시료 단면적을 A라 할 때 투수계수는 다음과 같다. 시험기구는 감소수두 투수계라고 한다.[1]:
이 식은 다르시의 법칙과 연속방정식을 적분하여 나온 것이다.
:
다르시의 법칙에 의해
:이므로
:
적분하면
:
:
이것을 k에 대해 정리하면 변수위 투수시험의 투수계수가 나온다.
침강 수두법에서, 흙 시료는 먼저 특정 수두 조건 하에서 포화된다. 그런 다음 물을 추가하지 않고 흙을 통해 물이 흐르도록 하여 물이 시료를 통과함에 따라 압력 수두가 감소한다. 침강 수두법의 장점은 세립토와 조립토 모두에 사용할 수 있다는 것이다.
만약 수두가 시간 Δt 동안 hi에서 hf로 떨어진다면, 수리 전도도는 다음과 같다.
:
'''증명:''' 위에서 언급했듯이, Darcy의 법칙은 다음과 같다.
:
부피 감소는 ΔV = ΔhA에 의해 감소하는 수두와 관련이 있다.
이 관계를 위 식에 대입하고, Δt → 0으로 제한하면, 미분 방정식
:
의 해는 다음과 같다.
:
를 대입하고 재정렬하면 결과가 나온다.
3. 1. 3. 온도 보정
정수위 투수시험, 변수위 투수시험을 통해 구한 투수계수를 15°C에서의 투수계수로 바꾸어주어야 한다. 온도가 T°C일 때의 투수계수를 kT, 점성계수를 μT, 온도가 15°C일 때의 투수계수를 k15, 점성계수를 μ15라고 하면 다음 식으로 보정할 수 있다.[1]: k15 μ15 = kT μT
3. 2. 현장 시험
현장 시험은 실내 시험에 비해 교란되지 않은 시료를 이용할 수 있으므로 투수계수를 더 신뢰성 있게 결정할 수 있다는 장점이 있다.[2] 현장 시험은 다르시의 법칙을 사용하여 해석된 수리 실험을 통해 투수계수를 결정한다.현장 시험 방법은 다음과 같이 구분된다.[2]
- 양수 시험
- 피압 지하수 우물(artesian well) 양수법
- 시추공을 이용하는 방법 (개단시험, 패커시험)
- 슬러그 테스트인 오거공법
현장 시험 방법은 최소한의 교란으로 토양의 투수성에 대한 가장 신뢰할 수 있는 정보를 제공한다. 반면 실내 시험 방법에서는 교란 정도가 토양 투수성 값의 신뢰성에 영향을 미친다.[2]
3. 2. 1. 양수 시험

하나의 시험정과 여러 개의 관측정을 파고, 시험정에서 일정량의 물을 양수하면서 관측정의 수위를 측정하여 투수계수를 정하는 것을 양수시험이라고 한다. 양수시험을 통해 구하는 투수계수는 다음과 같다. 양수량을 Q라고 할 때,
:k = \frac{Q \ln r_1/r_2}{\pi (h_1^2 - h_2^2)} = \frac{2.303Q}{\pi (h_1^2 - h_2^2)} \log \frac{r_1}{r_2}
만약 시험정 근처에 관측정을 파고, 원래 양수 전 지하수위에 또다른 관측정이 있다면 h_1^2 - h_2^2 = h_0^2 - h_3^2이므로 식은 다음과 같이 된다.
:k = \frac{Q \ln r_0/r_3}{\pi (h_0^2 - h_3^2)} = \frac{2.303Q}{\pi (h_0^2 - h_3^2)} \log \frac{r_0}{r_3}
Pumping test(양수 시험)는 흙의 투수 계수를 계산하는 가장 신뢰할 수 있는 방법이다. 이 시험은 다시 Pumping in test(주입 시험)와 pumping out test(양수 시험)로 분류된다.
3. 2. 2. 피압 지하수 우물 양수법
불투수층 사이에 피압 지하수층(confined aquifer)이 T의 두께만큼 존재하는 경우에도 양수 시험을 하여 투수 계수를 구할 수 있다.[1]:[1]
3. 2. 3. 시추공을 이용하는 방법
시추공을 이용하는 방법에는 개단시험, 패커시험이 있다. 지하수위가 얕을 경우, 슬러그 테스트인 오거공법을 사용하여 지하수위 아래의 투수 계수를 결정할 수 있다.[9]이 방법은 네덜란드에서 Hooghoudt(1934)에 의해 개발되었으며, 미국에서는 Van Bavel과 Kirkham(1948)에 의해 소개되었다. 방법은 다음과 같다.[9]
1. 오거공을 지하수위 아래 토양으로 천공한다.
2. 오거공에서 물을 퍼낸다.
3. 구멍 속의 수위 상승 속도를 기록한다.
4. K영어 값은 다음 데이터에서 계산된다.
:
- K영어는 수평 포화 투수 계수(m/일)이다.
- H영어는 토양 내 지하수위에 대한 구멍 속의 수위 깊이(cm)이다.
- at 시간
- at 시간
- 는 의 첫 번째 측정 이후의 시간(초)으로, 로 한다.
- 는 구멍의 기하학적 구조에 따라 달라지는 인자이다.
- :
여기서:
- 는 원통형 구멍의 반경(cm)이다.
- 는 토양 내 지하수위에 대한 구멍 속의 수위의 평균 깊이(cm)로, 로 구한다.
- 는 토양 내 지하수위에 대한 구멍 바닥의 깊이(cm)이다.
사진은 100ha 면적에서 오거공법으로 측정한 K영어 값의 큰 변동성을 보여준다.[9] 최고값과 최저값의 비율은 25이다. 누적 빈도 분포는 로그 정규 분포이며, CumFreq 프로그램을 사용하여 만들었다.
3. 3. 경험적 방법
투수계수는 매질과 통과 유체에 따라 달라진다. 매질의 경우 유효입경 D10, 공극비 e, 비표면적 S 등을 인자로 가지며, 유체의 경우 단위중량 γ, 점성계수 η 등을 인자로 가진다.[16]투수계수를 결정하는 방법에는 크게 두 가지가 있다.
- '''경험적 접근 방식''': 투수계수를 공극 크기와 입도 분포, 토양 조직과 같은 토양 특성과 연관시킨다.
- '''실험적 접근 방식''': 다르시의 법칙을 사용하여 해석된 수리 실험을 통해 투수계수를 결정한다.
토양수리전달함수(PTF)는 주로 토양학에서 사용되지만 수문지질학에서도 점점 더 많이 사용되는 특수한 경험적 추정 방법이다.[3]
3. 3. 1. 입도 분석을 통한 추정
앨런 해젠은 입도 분석을 통해 투수계수를 근사하는 경험식을 도출했다.:
- : 해젠의 경험 계수로, 0.0에서 1.5 사이의 값을 가지며(문헌에 따라 다름), 평균값은 1.0이다.
- : 재료의 10 백분위수 입자 크기의 직경이다.
'''Hazen의 경험식(1930)'''
, 균등계수 인 균등한 가는 모래의 경우 다음 경험식을 적용할 수 있다. c가 1.0에서 1.5 사이의 상수라고 할 때,
:
'''Taylor의 식(1948)'''
C가 형상계수라고 할 때,[16]
:
:Ds : 토립자 입경(cm)
'''Kozeny-Carman 식'''
Taylor의 식을 수정한 식이다. k0는 공극의 형상과 두 점 사이의 거리에 대한 실제 흐름 길이에 따른 계수이다.
:
'''Lambe-Whitman 식'''
:
3. 3. 2. 기타 경험식
'''Hazen의 경험식(1930)'''Hazen의 경험식에 따르면, 유효입경 이고 균등계수 인 균등한 가는 모래의 경우 투수계수는 다음과 같다.[16] c가 1.0에서 1.5 사이의 상수라고 할 때,
:
'''Taylor영어의 식(1948)'''
C가 형상계수라고 할 때,[16]
:
::Ds : 토립자 입경(cm)
'''Kozenyde-Carman영어 식'''
Taylor영어의 식을 수정한 식이다. k0는 공극의 형상과 두 점 사이의 거리에 대한 실제 흐름 길이에 따른 계수이다.
:
'''Lambe영어-Whitman영어 식'''
:
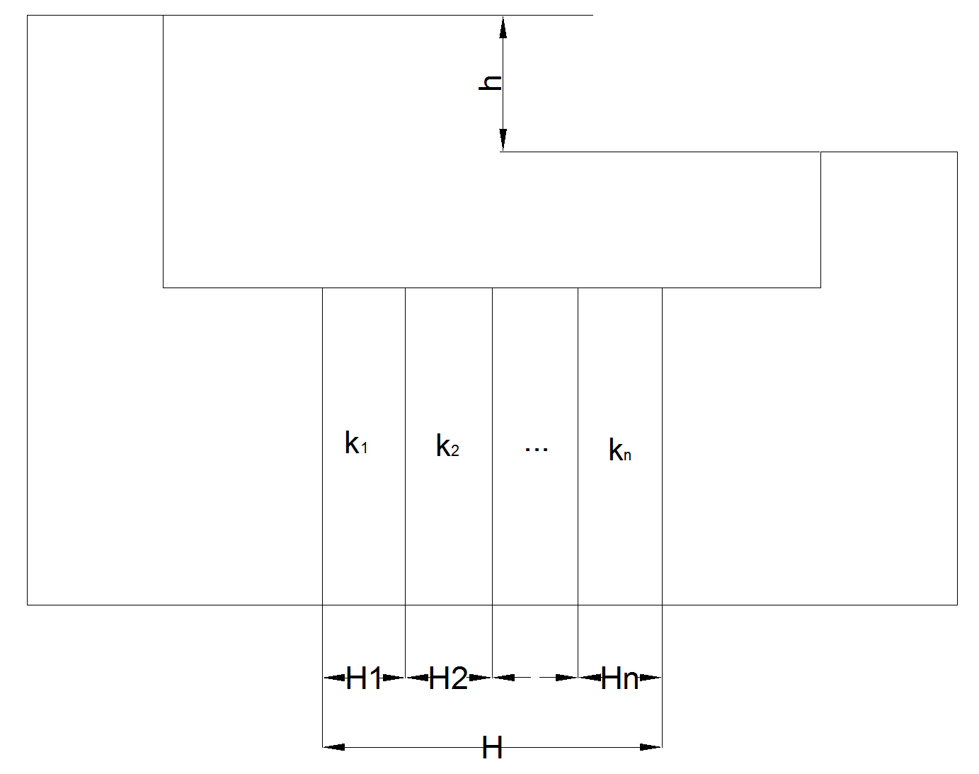
4. 성층토층 평균투수계수
토층이 여러 층으로 이루어진 경우, 각 층의 불교란 시료를 채취하여 투수계수를 측정한 후, 전체 토층의 평균 투수계수를 구한다. 평균 투수계수는 수평 방향과 수직 방향에 대해 각각 다르게 계산한다.
4. 1. 수평 토층 평균투수계수

토층이 다양한 경우 투수계수는 각 토층의 불교란 시료를 채취하여 각각의 투수계수를 측정한 후 전체 토층의 평균투수계수를 구하는 방법을 쓴다. 각 토층의 단위폭당 유량()을 전부 합하면 전체 토층의 평균투수계수를 이용한 단위폭당 유량(q)과 같다는 원리를 이용한다.
:
:
:
4. 2. 수직 토층 평균투수계수
토층이 다양한 경우 투수계수는 각 토층의 불교란 시료를 채취하여 각각의 투수계수를 측정한 후 전체 토층의 평균투수계수를 구하는 방법을 쓴다.
각 토층을 지나면서 생기는 수두손실을 이라고 하자. 모든 토층을 지났을 때 수두손실 이며, 이것을 각 토층의 동수경사와 토층 두께로 나타낸다면 다음과 같이 된다.
:
토층을 지나는 유량이 모두 동일하기 때문에 이며, 연속방정식에 의하면 유속도 모두 동일하다(). 이를 각 토층의 투수계수와 동수경사로 나타낸다.
:
전체 토층에서 유속으로부터
:
:
:
5. 등가투수계수
자연계 토질은 대부분 비등방성으로, 연직 방향 투수계수가 수평 방향 투수계수보다 작다(). 연속방정식을 라플라스 방정식으로 변환하면 x 방향으로 축소된 유선망을 그릴 수 있다. 축소된 좌표는 다음과 같이 표현된다.
:
침투가 x 방향으로만 일어난다고 가정할 때, 단위 폭당 침투 유량은 다음과 같다.
:
여기서 은 '''등가투수계수'''이다.
6. 투수계수의 단위 및 값의 범위
투수계수는 시간당 길이 단위를 가진다. 예를 들어 m/s, ft/day, (gal/day)/ft2 등이 있다. 투수성은 시간당 길이 제곱의 단위를 갖는다.[13]
6. 1. 단위
일반적으로 m/day를 쓰지만 빠르게 이동하는 물에 대해서는 cm/hr를 쓰기도 한다.[1]6. 2. 자연 상태에서의 값의 범위
모래와 자갈 대수층은 점토나 파쇄되지 않은 화강암 대수층보다 다공성과 투수성이 높아 수리 전도도가 더 크다. 따라서 모래 또는 자갈 대수층은 물을 추출하기가 더 쉽다.[13]수리 전도도(''K'')는 수문지질학에서 대수층의 가장 복잡하고 중요한 특성 중 하나이며, 다음과 같은 특징을 갖는다.[13]
- 여러 자릿수에 걸쳐 범위가 있다. (분포는 종종 대수 정규 분포로 간주됨)
- 공간에 따라 많은 양으로 변화한다. (때로는 공간적으로 무작위로 분포하거나 본질적으로 확률적으로 간주됨)
- 방향성을 갖는다. (일반적으로 ''K''는 대칭 2차 텐서이다. 예를 들어, 수직 ''K'' 값은 수평 ''K'' 값보다 여러 자릿수 작을 수 있다.)
- 스케일에 의존적이다. (m³ 대수층을 테스트하면 일반적으로 동일한 대수층의 cm³ 샘플에 대한 유사한 테스트와 다른 결과가 생성됨)
- 현장 양수 시험, 실험실 컬럼 흐름 시험 또는 역 컴퓨터 시뮬레이션을 통해 간접적으로 결정해야 한다. (때로는 입도 분석에서도)
- 비선형 방식으로 함수율에 매우 의존하며, 이는 불포화 흐름 방정식을 풀기 어렵게 만든다.

값은 전형적인 신선한 지하수 조건을 위한 것이며, 20°C 및 1 atm에서 물의 표준 점성 및 비중 값을 사용한다.[13]
'''자연 상태에서 포화 수리 전도도 (''K'') 값의 범위'''[13]
| K (cm/s) | K (ft/일) | 상대 투과율 | 대수층 | 비고결 모래 & 자갈 | 비고결 점토 & 유기물 | 고결 암석 |
|---|---|---|---|---|---|---|
| 10² | 105 | 투과성 | 양호 | 입도 분리가 잘 된 자갈 | rowspan="4" | | 고도로 균열된 암석 |
| 101 | ||||||
| 100=1 | 10,000 | 입도 분리가 잘 된 모래 또는 모래 & 자갈 | ||||
| 10−1 | 1,000 | |||||
| 10−2 | 100 | 반투과성 | 불량 | 매우 미세한 모래, 실트, 뢰스, 로움 | 이탄 | 유류 저장소 암석 |
| 10−3 | 10 | |||||
| 10−4 | 1 | 층상 점토 | 신선한 사암 | |||
| 10−5 | 0.1 | 신선한 석회암, 백운암 | ||||
| 10−6 | 0.01 | 불투과성 | 없음 | rowspan="4" | | 젖은/풍화되지 않은 점토 | 신선한 화강암 |
| 10−7 | 0.001 | |||||
| 10−8 | 0.0001 | |||||
| 10−9 | 10−5 | |||||
| 10−10 | 10−6 |
| 토양 유형 | 액성 한계, LL (%) | 액성 한계에서의 공극비, (%) | 수리 전도도, cm/s |
|---|---|---|---|
| 벤토나이트 | 330 | 9.24 | 1.28 |
| 벤토나이트 모래 | 215 | 5.91 | 2.65 |
| 자연 해양 토양 | 106 | 2.798 | 2.56 |
| 공기 건조 해양 토양 | 84 | 2.234 | 2.42 |
| 개방 건조 해양 토양 | 60 | 1.644 | 2.63 |
| 갈색 토양 | 62 | 1.674 | 2.83 |
참조
[1]
웹사이트
Hydraulic conductivity definition
https://www.preene.c[...]
[2]
논문
Empirical Methods and Estimation of Hydraulic Conductivity of Fluvial Aquifers
https://doi.org/10.2[...]
[3]
논문
Pedotransfer functions: bridging the gap between available basic soil data and missing soil hydraulic characteristics
[4]
문서
Controlling capillary flow an application of Darcy's law
https://imechanica.o[...]
[5]
서적
Soils and Foundations
Prentice Hall
[6]
문서
Bijdrage tot de kennis van enige natuurkundige grootheden van de grond
[7]
문서
Field measurement of soil permeability using auger holes
[8]
간행물
Determination of the Saturated Hydraulic Conductivity
http://www.waterlog.[...]
International Institute for Land Reclamation and Improvement, Wageningen (ILRI), The Netherlands
[9]
문서
Drainage research in farmers' fields: analysis of data
http://www.waterlog.[...]
[10]
문서
SATEM 2002: Software for aquifer test evaluation
http://content.alter[...]
International Institute for Land reclamation and Improvement (ILRI), Wageningen, The Netherlands
[11]
문서
The energy balance of groundwater flow applied to subsurface drainage in anisotropic soils by pipes or ditches with entrance resistance
http://www.waterlog.[...]
International Institute for Land Reclamation and Improvement, Wageningen, The Netherlands
[12]
문서
Subsurface drainage by (tube)wells, 9 pp. Explanation of equations used in the WellDrain model
http://www.waterlog.[...]
International Institute for Land Reclamation and Improvement (ILRI), Wageningen, The Netherlands
[13]
서적
Dynamics of Fluids in Porous Media
Dover Publications
[14]
문서
Fundamentals of SoilBehavior
John Wiley & Sons Inc.
[15]
논문
An approach for prediction of compressibility and permeability behaviour of sand-bentonite mixes
[16]
서적 인용
토목기사 과년도 - 토질 및 기초
성안당
2015
본 사이트는 AI가 위키백과와 뉴스 기사,정부 간행물,학술 논문등을 바탕으로 정보를 가공하여 제공하는 백과사전형 서비스입니다.
모든 문서는 AI에 의해 자동 생성되며, CC BY-SA 4.0 라이선스에 따라 이용할 수 있습니다.
하지만, 위키백과나 뉴스 기사 자체에 오류, 부정확한 정보, 또는 가짜 뉴스가 포함될 수 있으며, AI는 이러한 내용을 완벽하게 걸러내지 못할 수 있습니다.
따라서 제공되는 정보에 일부 오류나 편향이 있을 수 있으므로, 중요한 정보는 반드시 다른 출처를 통해 교차 검증하시기 바랍니다.
문의하기 : help@durumis.com